Thursday, 24 January 2019 00:16

Предлогаемая в аренду площадь может быть использована в качестве офисного помещения, торгового центра, часового или фармацевтического заводов, а также удобна для организации технопарка и т.д. Напровтив здания имеется соответсвующий большой паркинг. 

Описание строения (площади)

Имущество состоит из трех строений с применением современных архитектурных решений, площадь которой составляет 16,000 кв.м. На первом этаже находится парковка с отдельным входом и выходом, а также аварийным выходом, площадью 2811 кв.м.

Строение построено по технологическому методу железобетонных конструкций по каркасной системе.  Фасад облицован высококачественным стеклом и алюминиевыми щитами. 

Строение оборудовано высококачественной противопожарной системой, а также системой отопления и охлаждения. Все три строения оснащены лифтами и эскалаторами, а аварийные выходы покрыты жаростойкими материалами.

Описание первого строения (общая площадь 1998,5 кв.м, 3 этажа)

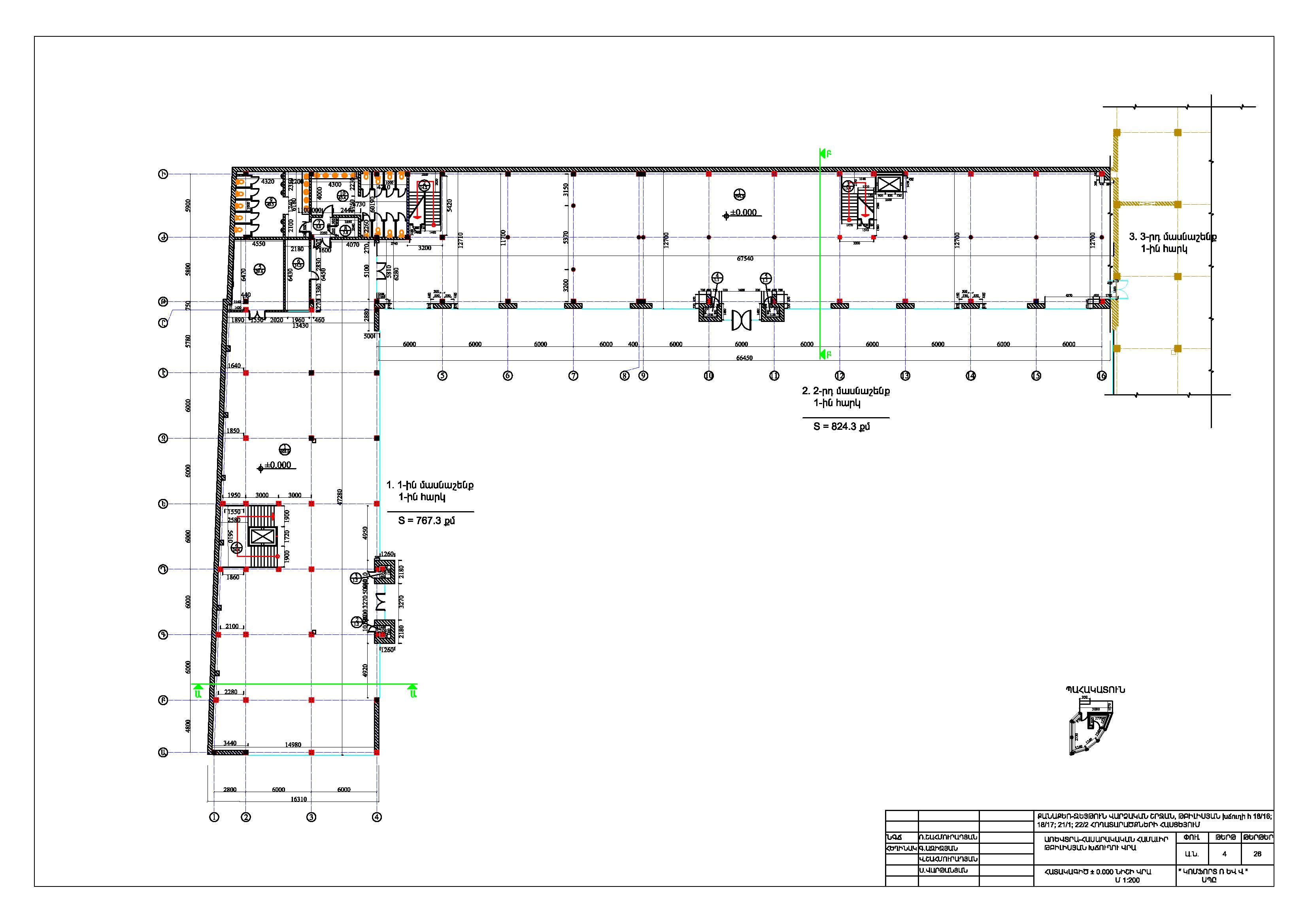
Общая площадь равна 767,3 кв.м, из которых 603,9 кв.м - демонстрационный зал; 24,4 кв.м. - лифт и эскалатор; 14,5 кв.м. – комната службы безопасности; 39,6 кв.м. -  офис; 92,5 кв.м. – туалеты.

Общая площадь второго этажа - 599,2 кв.м., из которых 563 кв.м -  демонстрационный зал; 24,6 кв.м. – лифт и эскалатор; 4,3 кв.м. – магазины; 7,3 кв.м. - крыша.

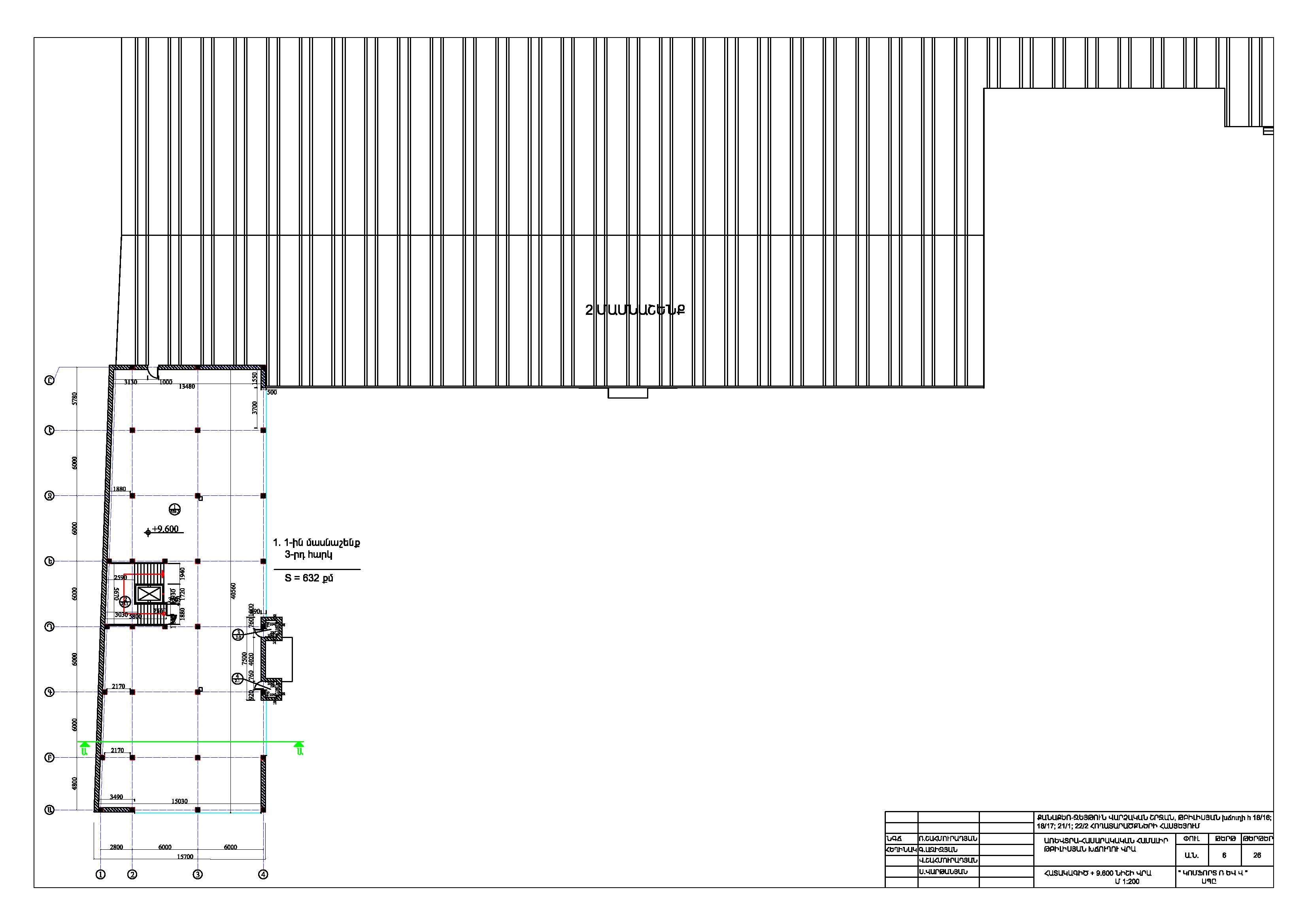
Общая площадь третьего этажа – 632 кв.м., из которых 559,3 кв.м. – демонстрационных зал; 25,1 кв.м. – лифт и эскалатор; 4,1 кв.м. – магазины.

Описание второго строения (общая площадь 3697,2 кв.м, 2 этажа и отдельная площадь под демонстрационный зал)

Общая площадь первого этажа – 824,3 кв.м, из которых 794,5 кв.м. – демонстрационных зал; 27,6 кв.м. – лифт и 2 лестничные площадки; 2,2 кв.м. – складское помещение.  

Общая площадь второго этажа – 1045 кв.м., из которых 1005 кв.м. – демонстрационный зал; 27 кв.м. – лестничные площадки и лифт; 4,5 кв.м – складские помещения; 8,5 кв.м – балкон. 

Имеется также демонстрационный зал площадью 1827,9 кв.м, который отделен от демонстрационного зала площадью 1005 кв.м. несколькими лестницами.

Описание третьего строения (общая площадь – 8821,8 кв.м, 8 этажей)

Общая площадь первого подземного этажа – 894,8 кв.м, из которых 46 кв.м – лестница и лифт; 10,1 кв.м. – комната службы безопасности; 142 кв.м. – коридоры; 691,2 кв.м. – 14 складских помещений. 

Общая площадь второго подземного этажа – 899,5 кв.м., из которых 52,1 кв.м. – лестница и лифт; 809,5 кв.м. – демонстрационный зал.

Общая площадь первого этажа – 912,5 кв.м, из которых 861,3 кв.м. - демонстрационный зал; 47 кв.м. – лестница, эскалатор и лифт; 4,2 кв.м. – складские помещения.   

Общая площадь второго этажа – 1258,7 кв.м., из которых 902,2 кв.м. – демонстрационный зал; 56,3 кв.м. – лестница, эскалатор и лифт; 3,8 кв.м. – складские помещения; 287,5 кв.м. – общее складское помещение, которое может быть использовано как площадка для отгрузки товаров; 6,1 кв.м. – балкон. 

Общая площадь третьего этажа – 1104,7 кв.м., из которых 1013,5 кв.м. – демонстрационный зал; 53,4 кв.м. – лестница, эскалатор и лифт; 7,6 кв.м. – туалеты; 24,7 кв.м. – складские помещения. 

Общая площадь четвертого этажа – 1122,8 кв.м., из которых 1029,7 кв.м – демонстрационный зал; 50,4 кв.м. – лестница, эскалатор и лифт; 8,3 кв.м. – туалеты; 26,9 кв.м. – складские помещения.   

Общая площадь пятого этажа – 1221 кв.м., из которых 782,5 кв.м. – офисная территория с 12 офисами; 248,2 кв.м. – конференц-зал; 53,9 кв.м. – лестничная площадка и лифты; 11,8 кв.м. – туалет; 19,8 кв.м. – комната службы безопасности; 16,7 кв.м. – складское помещение; 88,1 кв.м. – коридоры. 

Общая площадь шестого этажа – 1215,3 кв.м., из которых 841 кв.м. занимают 14 офисов; 91,4 кв.м. – конференц-зал; 47 кв.м. – лестница и лифт; 25 кв.м. – туалеты; 18,4 кв.м. – комната службы безопасности; 16 кв.м. – складское помещение; 54 кв.м. - коридоры; 89,6 кв.м. – приемная и зал ожидания; 28,8 кв.м. – кухня.  

Общая площадь мансарды – 162,5 кв.м., из которых 146,5 кв.м. – кухня ресторана и буфет; 11,2 кв.м. – лестница; 21,7 кв.м. – офис; 13,1 кв.м. – складское помещение.

Для обсуждение цены и условий аренды можно обращаться непосредственно к владельцу (собственнику) имущества.

Контактные данные:

Адрес: Тбилисское шоссе 22/1, Ереван

Тел. + (374 91) 42-43-11

e-mail: This email address is being protected from spambots. You need JavaScript enabled to view it.

Thursday, 24 January 2019 00:12

Կարող է օգտագործվել որպես գրասենյակ, ինչպես նաև առևտրի կենտրոն, ժամացույցի կամ դեղերի գործարան, նաև հարմար է որպես տեխնոպարկ և այլն: Ունի համապատասխան ավտոկայանատեղ:

Շինության (տարածքի) նկարագիրը

Վարձակալությամբ տրվող գույքը՝ տարածքը բաղկացած է ժամանակակից ճարտարապետական լուծումներ ունեցող երեք շինություններից, որոնց ընդհանուր տարածքը 16,000 քմ է՝ առաջին հարկում մուտքի և ելքի միացումներով և 2811 քմ ընդհանուր մակերեսով ավտոկայանատեղով և վթարային ելքերով: Այն կառուցվել է երկաթբետոնե կոնստրուկցայի  տեխնոլոգիական մեթոդներով՝  կարկասային սիստեմով, իսկ ճակատային հատվածը ծածկված է բարձր որակի նյութերով՝ ապակիով և ալյումինե վահանակներով:

Շինությունը սարքավորված է բարձր որակի հակահրդեհային, ջեռուցման և սառեցման համակարգերով: Բոլոր երեք շինությունները ունեն բարձրորակ վերելակներ և շարժասանդուղքներ, իսկ վթարային ելքերը ծածկված են հրակայուն նյութերով:

Առաջին շինության նկարագիր (ամբողջ տարածքը 1998.5 քմ., 3 հարկ)

Առաջին հարկի ամբողջ տարածքը 767.3 քմ է, որից ցուցասրահը զբաղեցնում է 603.9 քմ մակերես, վերելակը և շարժասանդուղքը՝ 24.4 քմ, անվտանգությանը սենյակը՝ 14.5 քմ, գրասենյակային տարածքը՝ 29.6 քմ, զուգարանային տարածքը՝ 92.5քմ:

Երկրորդ հարկի ամբողջ տարածքը 599.2 քմ է, որից ցուցասրահի ամբողջ տարածքը կազմում է 563 քմ, վերելակը և շարժասանդուղքը՝ 24.6 քմ,  խանութները՝ 4.3քմ և կտուրը՝ 7.3քմ:

Երրորդ հարկի ամբողջ տարածքը 632 քմ է, որից ցուցասրահի տարածքը կազմում է 559.3քմ, վերելակը և շարժասանդուղքը՝ 25.1 քմ,  խանութները՝ 4.1քմ:

Երկրորդ  շինության նկարագիր (ամբողջ տարածքը 3697,2 քմ, 2 հարկ և առանձնացված ցուցասրահի տարածք)

Առաջին հարկի ամբողջ տարածքը 824.3 քմ է, որից ցուցասրահը զբաղեցնում է 794.5 քմ տարածք, 2 աստիճանավանդակներն ու վերելակը՝ 27.6 քմ և պահեստը 2.2քմ տարածք :

Երկրորդ  հարկի ամբողջ տարածքը 1045 քմ է, որից ցուցասրահը զբաղեցնում է 1005 քմ մակերեսով տարածք, 2 աստիճանավանդակները և վերելակը՝ 27 քմ, պահեստները՝ 4.5ք քմ, պատշգամբը՝ 8.5 քմ:

Կա նաև 1827.9 քմ տարածք ունեցող ցուցասրահ, որը մի քանի աստիճանով առանձնացված է 1005քմ տարածք ունեցող ցուցասրահից:

Երրորդ  շինության նկարագիր (ամբողջ տարածքը՝ 8821.8 քմ, 8 հարկ)

Ստորգետնյա առաջին  hարկի ամբողջ տարածքը 894.8 քմ է, որից աստիճանները և վերելակը 46 քմ են զբաղեցնում, անվտանգության սենյակը՝ 10.1 քմ, միջանցքները՝ 142 քմ, 14 պահեստային սենյակները՝ 691.2 քմ:

Ստորգետնյա երկրորդ  hարկի ամբողջ տարածքը 899.5 քմ է, որից աստիճանները և վերելակը 52.1 քմ են զբաղեցնում, ցուցասրահը՝ 809.5 քմ:

Առաջին hարկի ամբողջ տարածքը 912.5 քմ է, որից ցուցասրահը  861.3 քմ է զբաղեցնում, աստիճանները, շարժասանդուղքը և վերելակը՝ 47 քմ, պահեստային սենյակները՝ 4.2 քմ:

Երկորդ hարկի ամբողջ տարածքը 1258.7 քմ է, որից ցուցասրահը 902.2 քմ է զբաղեցնում, աստիճանները, շարժասանդուղքը և վերելակը՝ 56.3 քմ, պահեստային սենյակները՝3.8 քմ, ընդհանուր պահեստային տարածքը, որը կարող է գործել որպես ապրանքների բարձման տարածք,՝ 287.5 քմ և պատշգամբը՝ 6.1 քմ:

Երրորդ hարկի ամբողջ տարածքը 1104.7 քմ է, որից ցուցասրահը 1013.5 քմ տարածք է զբաղեցնում, իսկ  աստիճանները, շարժասանդուղքը և վերելակը՝ 53.4 քմ, զուգարանները՝ 7.6 քմ և պահեստային սենյակները՝ 24.7 քմ:

Չորորդ hարկի ամբողջ տարածքը 1122.8 քմ է, որից ցուցասրահը 1029.7 քմ տարածք է զբաղեցնում, աստիճանները , շարժասանդուղքը և վերելակը՝ 50.4 քմ, զուգարանները` 8.3 քմ և պահեստային սենյակները՝ 26.9 քմ:

Հինգերորդ hարկի ամբողջ տարածքը 1221քմ է, որից 782.5 քմ զբաղեցնում  է օֆիսային տարածքը իր 12 գրասենյակներով, 248.2 քմ՝ կոնֆերենս-սրահը, 53.9 քմ՝ աստիճանավանդակն ու վերելակները, 11.8 քմ զուգարանը՝ , 19.8 քմ անվտանգության սենյակը, 16.7 քմ՝ պահեստային սենյակը և 88.1 քմ՝ միջանցքները:

Վեցերորդ hարկի ամբողջ տարածքը 1215.3 քմ է, որից 14 գրասենյակները 841.3 քմ ընդհանուր տարածք են զբաղեցնում, կոնֆերանս դահլիճը՝ 91.4 քմ, աստիճանները և վերելակը՝ 47քմ, զուգարանները` 25 քմ, անվտանգության սենյակը՝ 18.4 քմ, պահեստային սենյակը՝ 16 քմ, միջանցքները՝ 54 քմ, 89.6 քմ ընդունարանը  և սպասասրահը, իսկ խոհանոցը՝ 28.8 քմ տարածք:

Ձեղնահարկի ամբողջ տարածքը 192.5 քմ է, որից ռեստորանի խոհանոցը  և բուֆետը զբաղեցնում են՝ 146.5 քմ, աստիճանները՝11.2 քմ, գրասենյակը՝ 21.7 քմ և պահեստային սենյակը՝ 13.1 քմ:

Վարձակալության գների և այլ պայմանների քննարկման համար կարող եք դիմել անմիջականորեն տարածքի սեփականատիրոջը: Կոնտակտային տվյալները՝

Գտնվելու վայրը՝ Թբիլիսյան խճուղի 22/1, Երևան

Հեռ. + (374 91) 42-43-11

e-mail: This email address is being protected from spambots. You need JavaScript enabled to view it.

Tuesday, 22 January 2019 20:52

NEW & MODERN COMMERCIAL BUILDING for RENT in YEREVAN, ARMENIA - 16,000 sq.m. 

The area offered for rent can be used as an office space, a shopping center, a watch factory or a pharmaceutical factory, as well as a techno-park, etc. Parking is available too.

Description of the building (area)

The property consists of three buildings with the use of modern architectural solutions, the area of which is 16,000 square meters. On the ground floor there is a parking with a separate entrance and exit, as well as an emergency exit, with an area of 2811 sq. m.

The structure is built according to the technological method of reinforced concrete structures on the frame system. The facade is lined with high-quality glass and aluminum shields.

The building is equipped with a high-quality fire protection system, as well as a heating and cooling system. All three buildings are equipped with elevators and escalators, and emergency exits are covered with heat-resistant materials.

Description of the first building (total area 1998.5 sq.m, 3 floors)

The total area is 767.3 square meters, of which 603.9 square meters is a showroom; 24.4 sq.m. - Elevator and escalator; 14.5 sq.m. - Security room; 39.6 sq.m. - Office; 92.5 sq.m. - Toilets.

The total area of the second floor is 599.2 square meters, of which 563 square meters is a showroom; 24.6 sq.m. - Elevator and escalator; 4.3 sq.m. - The shops; 7.3 sq.m. - Roof.

The total area of the third floor is 632 sq.m., of which 559.3 sq.m. - Demonstration hall; 25.1 sq.m. - Elevator and escalator; 4.1 sq.m. - The shops.

Description of the second building (total area is 3697.2 square meters, 2 floors and a separate area for the showroom)

The total area of the first floor is 824.3 square meters, of which 794.5 square meters. - Demonstration hall; 27.6 sq.m. - Elevator and 2 landings; 2.2 sq.m. - Warehouse space.

The total area of the second floor is 1045 sq.m., of which 1005 sq.m. - showroom; 27 sq.m. - landings and elevator; 4.5 square meters - storage space; 8.5 square meters - a balcony.

There is also a showroom with an area of 1,827.9 square meters, which is separated from the showroom with an area of 1005 square meters. several stairs.

Description of the third building (total area - 8821.8 square meters, 8 floors)

The total area of the first underground floor is 894.8 square meters, of which 46 square meters is a staircase and an elevator; 10.1 sq.m. - Security room; 142 sq.m. - Corridors; 691.2 sq.m. - 14 storage rooms.

The total area of the second underground floor is 899.5 sq.m., of which 52.1 sq.m. - Stairs and elevator; 809.5 sq.m. - Showroom.

The total area of the second floor is 1258.7 sq.m., of which 902.2 sq.m. - Showroom; 56.3 sq.m. - Stairs, escalator and elevator; 3.8 sq.m. - Warehouses; 287.5 sq.m. - General storage space, which can be used as a platform for the shipment of goods; 6.1 sq.m. - Balcony.

The total area of the third floor is 1104.7 sq.m., of which 1013.5 sq.m. - Showroom; 53.4 sq.m. - Stairs, escalator and elevator; 7.6 sq.m. - Toilets; 24.7 sq.m. - Warehouses.

The total area of the fourth floor is 1122.8 square meters, of which 1029.7 square meters is a showroom; 50.4 sq.m. - Stairs, escalator and elevator; 8.3 sq.m. - Toilets; 26.9 sq.m. - Warehouses.

The total area of the fifth floor is 1221 square meters, of which 782.5 square meters. - Office area with 12 offices; 248.2 sq.m. - Conference hall; 53.9 sq.m. - Landing and elevators; 11.8 sq.m. - Restroom; 19.8 sq.m. - Security room; 16.7 sq.m. - Warehouse space; 88.1 sq.m. - Corridors.

The total area of the sixth floor is 1215.3 sq.m., of which 841 sq.m. occupy 14 offices; 91.4 sq.m. - Conference hall; 47 sq.m. - Stairs and elevator; 25 sq.m. - toilets; 18.4 sq.m. - Security room; 16 sq.m. - Warehouse space; 54 sq.m. - Corridors; 89.6 sq.m. - Reception and waiting room; 28.8 sq.m. - Kitchen.

The total area of the attic is 162.5 sq.m., of which 146.5 sq.m. - Restaurant kitchen and buffet; 11.2 sq.m. - Stairs; 21.7 sq.m. - Office; 13.1 sq.m. - Warehouse space.

For more details, including the price and terms of the lease, please contact the owner of the property.

Tel. + (374 91) 42-43-11

This email address is being protected from spambots. You need JavaScript enabled to view it.